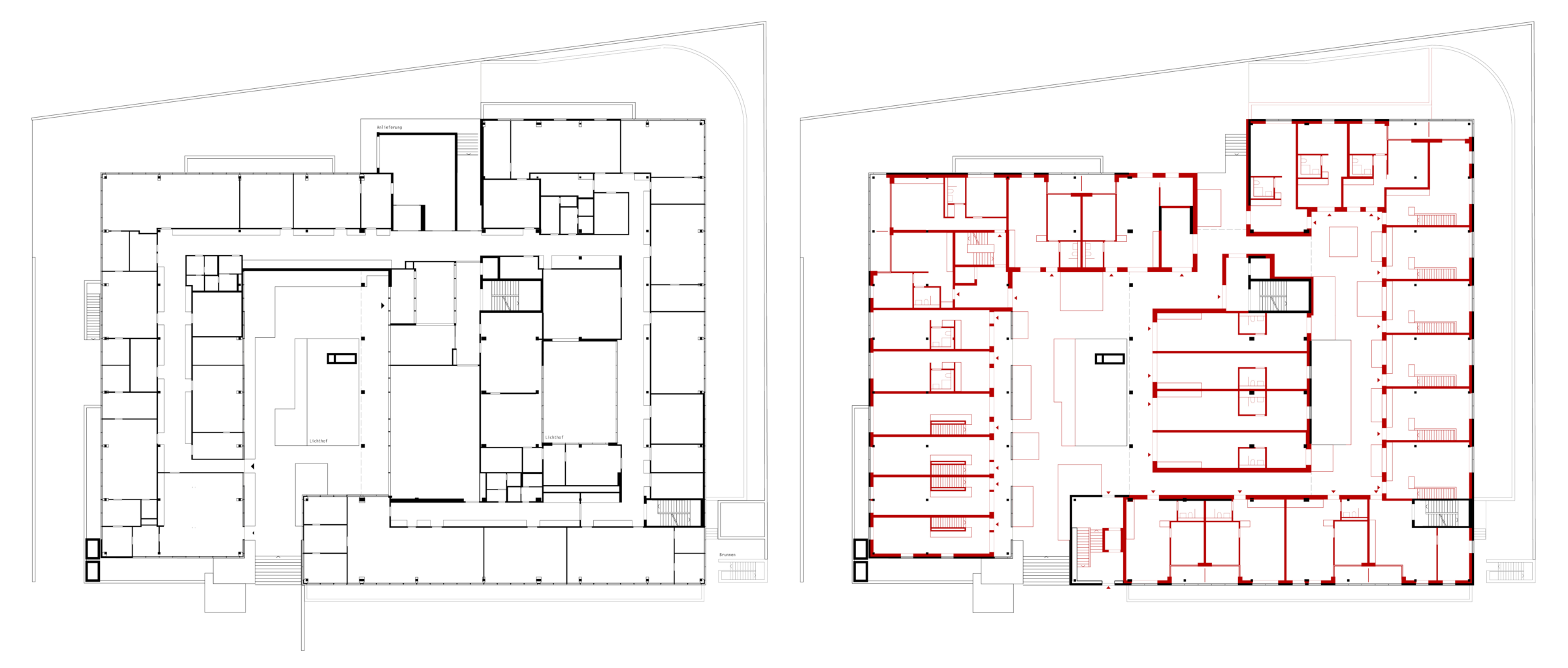
Das Gebäude an der Grenzacherstrasse 487 in Basel wurde 1969/70 durch die Hoffmann La Roche AG als Immunologisches Forschungsinstitut erstellt. Der neue Nutzungszyklus ist auf 30 Jahre angelegt. Durch den Umbau und die Aufstockung des Gebäudes werden 53 Wohnungen und Gewerbeflächen entstehen. Aus Gründen der Nachhaltigkeit soll die ganze Gebäudestruktur, die Fassade und möglichst viele Bauteile weiterverwendet werden.
Das neue Wohnungsangebot hebt sich von den Familienwohnungen in der Umgebung ab, wodurch die Durchmischung des Quartiers gefördert wird. Die besonderen räumlichen Bedingungen der bestehenden Gebäudestruktur verlangen nach aussergewöhnlichen Wohnungstypologien. Viele der Wohnungen werden direkt von den beiden Innenhöfen erschlossen. Die grossen Raumhöhen ermöglichen trotz hoher Dichte grosszügig angelegten Wohnraum.
Das bestehende Gebäude besteht aus zwei Untergeschossen aus Stahlbeton und ein- bzw. dreigeschossigen Aufbauten, die als Stahlskelettbauten ausgeführt sind. Die ergänzenden Aufstockungen werden in Holzelementbauweise ausgeführt.
Der Ausdruck des Gebäudes wird von den beiden Zeitspuren geprägt sein, die sich überlagern und ergänzen. Die bestehende Fassade ist aus präzisen Aluminiumpaneelen zu einer dünnen Haut zusammengefügt. Die neuen Bauteile sind mit einer Holzschalung verkleidet, welche die Erscheinung der Aufstockungen und der ergänzten Fassaden im EG prägt.
Bauherrschaft | Pensionskasse der UBS |
Leistungen | Architektur und Generalplanung (alle Teilleistungen) |
Planungsbeginn | 2021 |
Fertigstellung | 2025 |
Team | Matthias Ackermann, Silas Burger, Jonas Eichinger, Barbara Faigle, Sarah Goldemann, Alexandra Grieder, Okan Uluc |
Visualisierungen | Ackermann Architekt |
Verwandte Projekte | Einfamilienhaussiedlung Friedrich Oser-Strasse Tagesschule Am Bachgraben, Steinenvorstadt 5, |













